Проект дома
Бесплатно всем клиентамПри заказе дома проектирование осуществляется бесплатно! От вас потребуется только озвучить Ваши требования к будущему жилищу, его эстетике и комфорту.
Заказать
Режим работы:
Пн-Сб: с 8:00 до 20:00 Вс: выходной
Адрес:
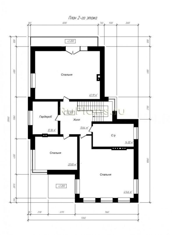
г. Самара, ул. 22 Партсъезда, д. 7а, корпус. 1| Жилая площадь | 231.36 |
| Размеры дома | 12.3 x 17.8 |
| Количество комнат | 7 |
| Количество спален | 3 |
| Гараж | Есть |
Точная цена зависит от варианта строительства. Выберите нужны в таблице ниже.
ЗаказатьСрок строительства от 60 дней

Фиксированная цена
Указанная в договоре стоимость работ остаётся неизменной в ходе всего сотрудничества, за исключением случаев реализации дополнительных пожеланий заказчика по доп. соглашению

Строим точно в срок
Мы добросовестно соблюдаем взятые на себя договорные обязательства, включая сроки строительства (до 4 месяцев). Вы получите результат - готовый дом - в запланированную дату

Поэтапная оплата
В интересах клиента можем предоставить удобные условия оплаты в рассрочку на протяжении срока строительства: оплачивается каждый этап по его завершению и приёмке
у Вас есть смета на строительство?
Мы готовы предложить цену ниже.| Минимум Коробка дома под крышу | Стандарт Коробка + перегородки, окна и двери | Под ключ Отделка white box | |
| Проектирование | |||
| Разработка индивидуального проекта дома | | | |
| Подготовка к строительству | | | |
| Выезд прораба на объект для оценки состояния участка и грунтов | | | |
| Фундамент | |||
| Фундамент в заивсимости от вида грунта и желания заказчика — Свайно-винтовой — Забивные сваи — Ленточный — УШП | | | |
| Каркас | |||
| Стены: блок, кирпич, деревянный каркас Перекрытия, усиленные лаги из сухой строганной доски 200*50 мм Перегородки, каркасные или блдочный в засисимости от вида проекта | | | |
| Кровля | |||
| Кровля, металлочерепица или мягкая кровля | | | |
| Подшивка свесов и водосточная система Docke | | ||
| Отделка | |||
| Дверь входной группы, утепленная, зимняя | | | |
| Наружная отделка: отделка стен, отмостки | | | |
| Окна ПВХ, толщина профиля 70мм, 2-х камерный стеклопакет, цвет белый. | | | |
| Внутренняя отделка: штукатурка стен и перегородок по маякам | | | |
| Межэтажная двухмаршевая лестница (техническая), в случае необходимости | | ||
| Коммуникации | |||
| Электричество, разводка проводки | | ||
| Водоснабжение, прокладка ПВХ труб. | | ||
| Водоотведение, канализация. Установка септика на 3 кольца | | ||
| Отопление, теплый пол пор всему периметру | | ||
| Вентиляция | | | |
| Цена руб. | 6 789 000 Получить точный расчет В ипотеку от 28 466 ₽ в месяц | 8 979 000 Получить точный расчет В ипотеку от 28 466 ₽ в месяц | 12 264 000 Получить точный расчет В ипотеку от 28 466 ₽ в месяц |
При заказе дома проектирование осуществляется бесплатно! От вас потребуется только озвучить Ваши требования к будущему жилищу, его эстетике и комфорту.
Заказать
Новый, комфортный стиль Вашей жизни
Вы больше не зависите от шумящих соседей, нерадивых коммунальных служб и тесного метража городских квартир! Теперь только спокойствие, тепло, уют и тишина в вашем собственном просторном доме.
Личный зеленый островок
Да, это о вашем новом участке! Где Вы сможете в любое время гулять, сажать цветы, выгуливать животных, собирать родственников и друзей на веселые пикники и отдыхать с комфортом на свежем воздухе.
Андрей Геннадьевич:
Заказывали проект небольшого одноэтажного дома. Все очень понравилось. У нас был ограниченный бюджет, но менеджер нам предложил подходящий вариант. Строительство прошло быстро и без заминки. Когда возникали вопросы, нам всегда отвечали. Уже сейчас, проживая в готовом доме вместе со своей семьей, я действительно рад, что обратился в компанию «Аванта». Рекомендую тем, кто хочет создать дом мечты, но не тратиться слишком сильно.
Иван Астахов:
Давно планировал построить свой дом. И вот случайно наткнулся на компанию «Аванта». Я остался полностью доволен сервисом. Специалисты внимательно выслушали все мои пожелания, предложили несколько вариантов проектов, из которых я смог выбрать идеальный. Мы согласовали все этапы строительства. Результаты мне всегда показывали, поэтому я мог следить за прогрессом. Огромное спасибо за такой качественный результат!
Максим Агишев:
Мы с семьей всегда мечтали о строительстве собственного дома и не прогадали. В компании «Аванта» работают настоящие эксперты. Нам помогли выбрать оптимальный проект дома. Все вопросы были решены максимально быстро и без каких-либо заминок. Я доволен всем! А мои дети просто в восторге от дома – теперь у них есть достойное место для проживания.
Схема проезда
Наши операторы свяжутся с Вами в ближайшее время. Пожалуйста, ожидайте звонка.